1 Точнее, это целая сеть автономных мастерских, которые работают и в других городах Финляндии.
У нас в Хельсинки есть Хаклаб. Это мастерская1, в которую может попасть каждый и, при выполнении некоторых простых условий, воспользоваться тамошним оборудованием. К 21 веку человечество уплотнилось и урбанизировалось настолько, что станки, начиная уже со швейной машинки, нет смысла покупать в личное пользование, ведь 95% времени они будут собирать пыль в тёмном углу кладовки. Проще и эффективнее делить их время между пользователями, а покупать вскладчину.
2 Да чего там: даже в самой Финляндии бесплатный доступ к станкам есть в каждой библиотеке.
Поэтому публичных мастерских в мире много. Я был в куче подобных мест в Китае, Тайване, Корее, Германии, США, России2. Они могут называться по-разному и иметь какие-то «уклоны», например, в электронику, металлообработку, кузнечное дело, но базовая идея: помещение с оборудованием, которым может воспользоваться каждый, у всех неизменна.

Однако, Хаклаб в Хельсинки всё-равно особенный потому, что:
- Не зависит от государственных денег и решений. Финансово самоокупается за счёт самих резидентов и доноров.
- Несмотря на предыдущий пункт, Хаклаб не является коммерческим предприятием. Никто не получает зарплату несмотря на то, что для некоторых Хаклаб — это работа.
- Управляется сообществом резидентов и конкретно советом директоров из почти двух десятков людей, которые регулярно меняются. В Совете не какие-то абстрактные «менеджеры», а постоянные резиденты. Большинство можно встретить прямо в Хаклабе. При входе висит доска с фотками и именами всех, кто сейчас в Совете, потому что именно эти люди могут помочь с любым вопросом о Хаклабе.
- Большинство внутренних процессов построено на доверии и презумпции того, что каждый резидент обладает базовым здравомыслием. При этом с технической стороны вся внутренняя кухня полностью прозрачна для любого резидента: можно посмотреть кешбук Хаклаба или посетить заседание совета. Очно или онлайн.

Мне кажется, именно эти пункты и удачное стечение обстоятельств позволили когда-то Хаклабу вырасти из простого кружка радиолюбителей, успешно существовать уже больше 15 лет и продолжать развиваться. За 3 года, что я посещаю это место, в нём постоянно что-то меняется. Он прирастал оборудованием, резидентами, площадью. Правила адаптировались под новые реалии: что-то проходит проверку временем, что-то отмирает само собой.
3 Зато выполнены все KPI перед столичной мэрией.
Главное, что получился не очередной «имиджевый проект районной администрации по строительству мастерской», наскоро возведённой на государственные деньги и набитой блестящим оборудованием, которым никто не знает, как пользоваться и в которой никто ни за что не отвечает3. Получилась живая, обжитая среда со своими особенностями и своим сообществом, которое много берёт из мастерской и ещё больше в неё несёт.
Сколько это стоит?
4 На самом деле все эти правила не прибиты гвоздями к уставу и если есть обоснование, то с Советом можно договориться. Например, я целую неделю работал на фрезерном станке ещё до того, как мне одобрили даже базовое членство просто потому что смог убедить их в срочности проекта.
Базовое членство стоит около €40 в год. За эти деньги у резидентов появляется возможность посещать мастерскую еженедельно в день открытых дверей — по вторникам, пользоваться чатиками Хаклаба в Slack и вообще чувствовать себя полноценным резидентом. На деле, если у вас есть какой-то срочный проект, вы можете приходить в мастерскую и в другие дни при условии, что внутри будет кто-то, с кем вы договорились, и кто за вами присмотрит4. Кто-то уровня key-member.
Key-member — это следующий и последний уровень. Помимо базового годового взноса, вы можете платить ещё по €40 в месяц и просто получить ключ от Хаклаба. Приходить можно в любое время дня и ночи. Никаких выходных и праздничных дней у Хаклаба нет. Перед получением ключа придётся пройти собеседование и после него примерно часовой инструктаж об инфраструктуре помещения, которое вам придётся закрывать, если вы будете уходить последним. Ещё на этом уровне вам полагается до четырёх 15-литровых контейнеров для хранения любых личных вещей и место для них на складе.

Важно: Всю информацию, которую я здесь оставил, обязательно проверяйте на сайте Хаклаба. Цены меняются, открытые вторники, год от года, превращаются в открытые четверги.
Хаклаб большой?
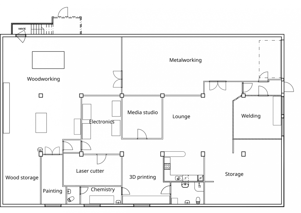
На дату написания заметки Хаклаб занимает примерно 700 м², и в начале года было принято решение об аренде ещё около 100 м² под офисы этажом выше. Всё помещение разбито на зоны и «цеха». Площадь — главный ресурс мастерской. Хаклаб бы с радостью разжился бо́льшим количеством станков, если бы их было куда поставить.

Актуальный план из вики.
Внутри тесновато, но всё ещё не так тесно, как в хакерспейсах Шэньчжэня. При этом сразу заметно, что оборудование размещено настолько оптимально, насколько это возможно.
Что там есть?
Основное оборудование и станки перечислены в вики Хаклаба, однако информация в ней может не поспевать за реальностью.
Вот основной список станков по комнатам, как я его помню на сегодня
- Общая комната
- Принтер Prusa XL с 5 головами
- Принтер Prusa mk3
- Малый лазер Epilog Helix24. Небольшой, но точный и новый
- Комната с лазером
- Большой лазер CM1690
- Покрасочный цех
- Пистолет для порошковой покраски
- Специализированная печь для закрепления порошка
- Деревообрабатывающий цех
- Малый распиловочный стол Skil
- Торцовка Festool
- Большая ленточная пила для досок и брёвен
- Малая ленточная пила
- Planer (фуганок)
- Thikness planer (рейсмус)
- Большой ленточный шлифовальный станок
- Точильный стенд Tormek
- Сверлильный станок (из старых, с передачами, мм)
- Советский токарный станок на котором можно крутить брёвна
- Промышленный распиловочный стол с подвижной рамой
- Jointer (промышленный фрезерный стол)
- Металлообрабатывающий цех
- Малый CNC фрезер
- Большой CNC центр
- Малый токарный станок
- Большой токарный станок
- Фрезер конструкции Bridgeport
- Ленточная монтажная пила
- Гибочный станок (пассивный)
- Станция для заточки свёрел, резаков и пр.
- Гильотина для резки листовых материалов (пассивная)
- Fire room (кузница)
- TIG, MIG сварка с несколькими газами
- Газовый горн
- Индукционный горн
- Какая-то огромная пердула для сварки алюминия (я правда не знаю что это)
- Тысяча разных граиндеров с камнями, ремнями и пр.
В этом списке я перечислил только самое основное, упустив из вида целые комнаты. Я вовсе не упоминаю тут электротехническую лабораторию, в которой, по-моему, есть вообще всё. Не упоминаю детали инфраструктуры типа системы сбора опилок в цехе с деревяшками или общей для двух цехов подводки сжатого воздуха. И уж точно не рассказываю про бесконечное количество электро- и ручного инструмента в диапазоне от линейки до систем шлифования. Сколько в Хаклабе этого добра — никому не известно.
А материалы и расходники?
Помимо инструментов и оборудования, в Хаклабе почти свободно и часто бесплатно можно использовать тамошние материалы. Их там очень много. Это особенно удобно в электролабе, когда вы снова заказали в Mouser резисторов на €300, но вам всё равно чего-то не хватило для завершения проекта. Коллекция компонентов в электролабе впечатляющая.
Некоторые часто используемые материалы у Хаклаба можно купить. Например, филамент для печати, или фанеру для резки лазером, или дерево разных пород и даже газ. При этом стоимость на них не сильно выше рыночной, а если принять во внимание, что на рынке придётся покупать бо́льшими кусками и потом ещё как-то доставлять в мастерскую, то выясняется, что цены и вовсе выгодные.
Это применимо ко всему: у Хаклаба нет цели заработать на резидентах. Это некоммерческое предприятие, помните? Поэтому китайские Arduino можно купить в электролабе почти по цене Алиэкспресса. Хаклаб продаёт их не ради заработка, а потому что посетители постоянно про них спрашивают.
Всем этим добром можно пользоваться без ограничения?
В разумных пределах и пользуясь здравомыслием. Многими станками нельзя пользоваться, если вы не прошли обучение. Оно бесплатное и проводится в небольших группах. В среднем, даже для сложных станков обучение не длится больше 3 часов с небольшим кусочком практики.

Запрещено оставлять любые станки в рабочем режиме без присмотра. Если с разными токарниками это очевидно, то для CNC станков, где программы могут выполняться часами, очевидно уже не для всех. По той же причине запрещена беспризорная 3D-печать. Вам не обязательно стоять и пялиться часами в принтер, но вы должны быть где-то поблизости, внутри Хаклаба. Ночная печать, конечно же, тоже не разрешается.
Нельзя уносить инструменты из Хаклаба с собой чтобы «быстренько» починить что-то дома. Ребята давно выяснили, что это попросту не работает.
Про использование расходников и материалов написано в прошлом разделе, но в целом логика такая: небольшие куски материалов можно смело использовать, если они не подписаны чьими-то именами. Расходники типа абразивных дисков для шлифмашинки всегда удобнее иметь собственные.

5 Привет WD40 и IPA.
Обычно, если что-то из расходников не получается найти в Хаклабе или оно имеет тенденцию быстро заканчиваться в самый неподходящий момент5, то рабочая тактика — приносить такие предметы с собой и хранить в личном контейнере. Помимо защитных очков, затычек-наушников и маски, у меня там небольшой набор разметочных инструментов, фрезы, шлифовальные диски, некоторые специфические инструменты и самодельные джиги.
Так сколько там в итоге резидентов?
На начало 2026 года: в базе около 650 резидентов, из них около 200 с ключами.
Кто-то отдал Хаклабу старые осциллографы. Электролаба проверила все, пометила дефекты и продаёт по цене от €0 до €20.
При этом я не могу сказать, что в Хаклабе не протолкнуться и станки постоянно заняты. Если вы решите посетить место в полдень в будний день, то, скорее всего, будете первым, кто сегодня появился, и часов до 15-16 ничего не изменится. Летом людей ещё меньше.
Сообщество — самый главный актив Хаклаба. Доступ к чужим мозгам и возможность меняться идеями и опытом — пожалуй, главная особенность таких мест.
Станки не бронируются, как в местных библиотеках. Вы просто приходите и работаете. Иногда приходится договариваться с другими резидентами, которые заняли машину раньше, но никакого специального менеджмента времени оборудования тут нет.
У резидентов есть какие-то обязанности?
Убирать за собой рабочее место. Имейте в виду: я вылез из кожи, чтобы удержаться и не написать это капсом. В местном чате есть особый вид фольклора: выкладывать фотки неубранных рабочих мест.

Дважды в год проводятся субботники, о которых Совет уведомляет заранее. Они необязательные и многими воспринимаются как дополнительный повод прийти, пообщаться и сделать что-то вместе.
У меня нет никаких «проектов», зачем мне такое?
Во-первых, чтобы научиться чему-то новому. Даже если у вас нет необходимости работать за станками, сама возможность пройти на них обучение, которое проведёт живой человек с небольшой практикой и сессией вопросов-ответов, кажется мне гораздо более ценной, чем членский взнос за год. Это же бесплатный и эффективный способ узнать, из чего и как сделан окружающий мир.
Во-вторых, попробовать инструменты. В домашних условиях вы никогда не поймёте, нужна вам японская пила, зензубель, оптический тахометр или кромочный фрезер, пока не купите один. В Хаклабе есть тысячи единиц самого странного инструмента. Даже если вы опытный «машинист» или столяр, ассортимент Хаклаба вас удивит.

В-третьих, Хаклаб — это музей. Я мог бы завести канал на Ютюбе и до конца жизни выкладывать туда обзоры всратой, странной фигни, которую нашёл в Хаклабе и которая была сделана ещё до моего рождения. Ну этот, «всё новое — это мусор» тип контента. Здесь даже есть ретро-уголок со старыми компьютерами, где коробки с лицензионной Windows 95 соседствуют с картриджами Donkey Kong, выпущенными в 1982 году. Всё это можно подключить к CRT телику и попробовать.
В-четвёртых, тут есть кружки́! Есть кружок радиолюбителей. Не тех, которые пытаются при помощи осциллографа дебажить device tree для китайского SoC, а тех, которые на коротких волнах разговаривают с такими же отбитыми из ЮАР. Можно получить какие-то допуски, сертификаты, позывные — я в этом не разбираюсь. Есть кружок ракетостроителей. Периодически вижу на столах какие-то дроны и планеры. Организуются презентации и мастер-классы по разным CAD’ам.

В-последних, в Хаклабе можно что-то чинить. Это особый вид дзена для тех, кто уже всё починил у себя дома и готов переключиться на починку, сборку или модернизацию CNC станков. Доступен любой тип работ от замены лампочек на кухне и печати шторок для направляющих Reino до модернизации Lotta. Заведующие цехами могут выдать вам целый бэклог работ для конкретной машины. Можно без спроса точить стамески, свёрла или карандаши. Можно сортировать винтики.
Можно вернуть все баллоны со смазкой на их места. Испытание на 2 часа и выдающуюся внимательность. Как Where is Waldo, только Where is PTFE.
Каждый раз, когда в Хаклабе что-то ломается, чат оживляется, и желающих с самыми разными идеями хоть отбавляй. Прямо сейчас ребята обсуждают, как прорубить потолок и установить винтовую лестницу в верхнее помещение. Можно поучаствовать.
Ой, ну всё. Как туда попасть?
Адрес есть на сайте. Можно прийти вечером, в день открытых дверей, позвонить в звонок, сказать, что вы новенький и попросить провести для вас экскурсию. Важная деталь: эта экскурсия не сделает вас резидентом. Для этого нужно подать заявку через сайт и подождать пару недель, пока её рассмотрят и одобрят на очередном заседании Совета.
Я сам могу провести для вас экскурсию в любой другой день или время, если буду свободен. Пишите.
⚠️ Каменты в режиме эксперимента. Нужна регистрация на GitHub и необходимо дать разрешение боту Giscus. Если это неприемлемо, можно комментировать прямо на GitHub.

